小巧精致的30㎡单身公寓装修,麻雀虽小五脏俱全,难能可贵!

没有最小只有更小,30平米的单身公寓,怎样装修设计才能够满足正常的家居生活呢?公寓类户型大多是长方形,厨房、卫生间建议设置在进门处,中间是客厅和餐厅,接下来就是卧室,互不影响的设计带来更加舒适的家居生活方式。下面就和“未来家装网”一起来看看这套小巧精致的30㎡单身公寓装修案例!
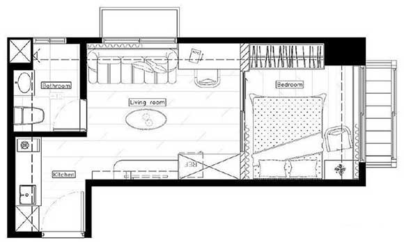
先看看户型图,非常标准的公寓类户型,进门左手边是开放式的厨房,进门对面是卫生间,卧室在空间的尽头,卧室和卫生间的中间位置是客厅,整个空间的实用性非常不错。各功能性区域相互独立,完全能够满足正常家居生活的所有需求。
进门处的过道位置有限,将定制的整体橱柜安装在进门左手边的墙面,地柜中间嵌入了洗衣机,空间的利用十分充分。很多朋友会担心这种开放式厨房的油烟问题,但一个人的生活,饮食方面都会非常的简单,很多单身的朋友半个月可能都不会在家做饭。
电视背景墙刷上浅蓝色的乳胶漆来装饰,装上挂墙式简易电视柜和置物搁板,装饰墙面的同时还有着不错的收纳能力。电视背景墙的一侧定制了到顶的储物柜,并将冰箱嵌入安装,小户型空间装修,空间的利用既要充分,又不能对空间带来令人不适的压抑感。
中间的客厅空间,棕色的木地板,白色的墙面,十分简洁的设计却特别的舒服。这个户型的优势在于客厅旁有扇朝外的窗户,不必担心室内的采光效果。许多公寓类户型,大多只有一扇朝外的窗户,在装修时就要注意室内的采光问题。浅灰色布艺沙发和卧室之间的墙面,摆放了一张简易的书桌,书桌上方的墙面安装了小吊柜,偶尔在家工作非常的方便。
沙发前搭配了两张异形的小茶几,平时也能当餐桌使用,简洁而时尚的设计带来更加惬意的家居生活。公寓类户型装修,大多不会去设置独立的餐厅空间,可以使用茶几来实现餐桌的功能,或者利用墙面、角落等位置安装挂墙式可折叠的餐桌。
站在卧室看向客厅,采用玻璃推拉门隔出独立的卧室空间,增加卧室的私密性。又不会影响到室内的通透性。
大量使用原木板材,木材的温馨质感让空间看起来更加的温馨。
卧室的面积十分紧凑,在床架和窗户之间放置了一张化妆台,哪怕是一个人生活,也不可以太过简单。
最后来看看卫生间的装修效果,深灰色的墙面瓷砖,浅灰色的地面瓷砖,搭配白色的马桶和浴室柜,简洁的色彩搭配美观又大方。面积实在有限,小巧的挂墙式白色浴室柜收纳能力一般,所以配了一个带储物格的镜柜。淋浴设备安装在墙面拐角处,小小空间装修设计依然很上心。
本内容为作者独立观点,不代表“未来家”立场。如对本稿件文字及图片有异议,请联系在线客服!
“未来家”让装修更简单





