见过最温暖的家,现代风格稳重又大气,开放式空间设计实用极了!

这是一套空间很宽敞的大户型,整体采用现代风格来设计,开放式空间布局看起来非常大气,素雅的配色营造出的空间稳重踏实又不失时尚的设计感。完全可以做三房的户型,却只设置了两间卧室,主卧室里不仅有独立的卫生间,还有衣帽间,客厅、书房、餐厅、厨房采用一体式设计,空间的视觉极为开阔,整体的装修效果很上档次。下面就和“未来家装网”一起来看看这套采用开放式设计的现代风格装修案例!
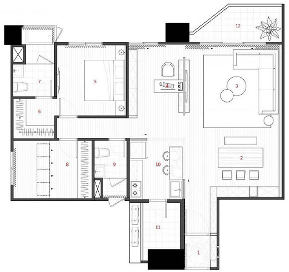
先来看看本案的户型图,户型比较方正,各功能性空间布局合理,空间利用率高提升了空间的实用性。主卧室中有独立的卫生间和衣帽间,大大的客厅被划分出客厅、餐厅、书房和吧台区,营造出舒适性更好的家居空间。
整体的配色设计十分的素雅稳重,白色与灰色的空间简洁时尚还特别大气。开放式的书房与客厅之间用砖头砌了半堵墙,既是隔断墙又是电视背景墙,隔而不断让空间的视觉开阔,采光效果也更好。地面铺上深棕色木地板,墙面刷上白色乳胶漆,造型简洁的平面吊顶,看似简洁的设计效果却显得特别有高级感。
矮墙隔断贴上白色的石材,再配上一张黑色的电视柜,简约而大气的电视背景墙,设计效果堪称完美。电视背景墙设计是客厅装修时的重点,本案矮墙式电视背景墙绝对是全屋设计的一大亮点,值得我们学习借鉴。
白色的地毯,深灰色的布艺沙发,中间配上一张圆形的大理石茶几,兼具现代风格的时尚与北欧风的慵懒。沙发背景墙的设计也是客厅的一大亮点,水泥色乳胶漆装饰的墙面,错层式的墙面提升了空间的层次感。深灰色的长方餐桌,配上灰色的餐椅和黑色的长凳,客餐厅一体式的设计既时尚又不失温馨的家居氛围。
特别是餐桌一侧墙面定制的白色收纳柜,全面提高了家中的收纳能力。
电视背景墙后的书房,利用墙面定制了满墙的无门书柜,简易的黑色书桌,配上舒适的椅子,满足工作学习的使用要求。
主卧室的装修同样十分的简洁,原木色集成板材装饰的床头背景墙,深灰色的挂墙式床头柜,配上两盏造型时尚的台灯,渲染出格外温馨的睡眠环境。
卫生间的装修效果,米黄色的墙面瓷砖让卫生间显得格外温暖,不仅安装了浴缸,还有独立的淋浴区,简洁清爽也特别实用的装修方式。
本内容为作者独立观点,不代表“未来家”立场。如对本稿件文字及图片有异议,请联系在线客服!
“未来家”让装修更简单





