客厅餐厅墙面打柜子,浴室柜外移,88㎡简美风格装修好看又实用!

88平米的户型,居然可以做三房,关键是主卧室里还有衣帽间,这样的户型想必每个人都会喜欢吧,整体采用简约美式风格来设计,家居氛围温馨舒适又不失大气感。主要是因为开发商的赠送面比较差,差不多赠送了18平米。很多朋友会担心这样的面积做三房会有些拥挤,但实际的效果却真是能令所有人都满意。下面就和“未来家装网”一起来看看这套88㎡简约美式风格三房装修案例!
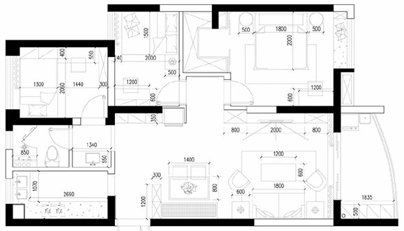
先来看看本案的户型图,进门左手边是厨房和卫生间,右手边是餐厅和客厅,比较方正的户型,几乎没有浪费任何空间。客厅外的弧形飘窗非常大气,视野效果非常棒。两间小卧室的面积十分紧凑,全部采用定制榻榻米的方式来设计,满足两孩家庭的居住要求。主卧室的面积比较宽敞,还有间相对独立的衣帽间,满足更多衣物的收纳要求,提升家居生活的舒适性。
全屋最实用的地方当属客厅电视墙和餐厅墙面的设计,采用定制的储物柜来装修,既提升了家中的收纳能力,又让空间的装饰效果上了一个档次,美观大方且特别实用的设计方式。将冰箱嵌入餐厅收纳柜中,合理利用空间的同时,更解决了小户型空间冰箱摆放位置的问题。
整体采用十分简洁的美式风格来设计,不需要太高的装修预算,但空间看起来的效果却依然很大气。淡淡的蓝色乳胶漆装饰的墙面,再利用白色装饰条进行造型处理,打造出的沙发背景墙十分漂亮。美式风格的三人位布艺沙发与单人沙发组合,中间放上一张深棕色的实木茶几,没有想象中那么的拥挤,反而让人感觉特别舒服。客厅和阳台之间安了玻璃推拉门,虽然空间的面积不大,但独立的阳台空间功能性会更好。
将餐桌餐椅直接摆在沙发旁,另外一侧是入户的白色矮鞋柜,既保证了空间视野的开阔性,又满足了所有的家居功能要求,简洁大方还特别实用。靠墙位置定制了卡座代替餐厅,让餐厅占据的面积更小,留出更多的活动空间,让空间显得更加通透明亮,没有丝毫的拥挤感。
落地式的换衣镜,插着黄色干花的绿色小花瓶,适当的软装搭配让空间更加的耐看。花瓶是现代家居空间里重要的软装饰,根据不同装修风格来搭配合适的花瓶,玻璃材质的花瓶能够与更多的家装风格进行很好的匹配,大家在选择花瓶时可以优先考虑。
L型布局的厨房空间,面积虽然紧凑,但基本能够满足一家四口的饮食要求。白色的定制橱柜,搭配米黄色的台面,简洁大方更加的耐看。地面采用带图案的仿古瓷砖来装饰,能够更好的彰显出美式风格的特点。
主卧室的装修效果依然是简美风格,白色装饰条、米黄色墙纸加深蓝色集成板材装饰的床头背景墙,优雅美观又不失大气。搭配浅灰色的美式风格软包布艺床架,沉稳而大气的视觉效果显得特别有档次。
浅蓝色的浴室柜安装在卫生间的外面,旁边用砖头砌了一堵矮墙和客厅隔开。浴室柜的造型设计非常优雅,浅蓝色的柜安装黑色的拉手,有点复古设计却又时尚清新。
最后是卫生间的装修效果,墙面和地面均采用仿木纹棕色瓷砖来装饰,搭配白色的马桶,看起来依然十分的协调。空间有限的原因,没有设置独立的淋浴区,好在浴室柜安装在了外面,也不必过于担心潮湿的问题。
本内容为作者独立观点,不代表“未来家”立场。如对本稿件文字及图片有异议,请联系在线客服!
“未来家”让装修更简单





