台湾夫妻的72㎡新房,面积小布置很温馨,全屋收纳设计真实用!

72平米的小两房,整体采用简约风格来设计,客厅餐厅厨房一体,不买沙发和电视,餐厅里装卡座,小空间被设计的特别温馨,居家过日子就该这样装修。全屋通过大量定制的储物柜来设计,既充分利用了现有空间,又提高了空间的收纳能力,各种家具物品都有自己专门的收纳场所,让小小的空间变得井井有条,没有一丝凌乱的感觉。下面就和“未来家装网”一起来看看这套面积很小布置却特别温馨的72平米简约风格装修案例!
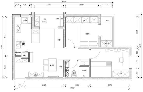
还是先来看看本案的户型图,比较常见的两房户型,进门处设置了带鞋柜功能的玄关隔断墙,隔断空间的同时也增加了室内的私密性。由于空间面积有限的原因,客厅、餐厅、厨房被设置在同一个空间,开放式的空间布局让空间更宽敞,带来更加舒适的居住体验。
两间卧室的面积都非常小,主卧室采用定制榻榻米来设计,榻榻米的底部设计成抽屉,一侧的墙面定制了满墙的衣柜,大大提高空间的收纳能力。
进门处的位置十分小,利用定制的鞋柜加砖头设置了一面玄关墙,不仅提升了家中的收纳能力,更起到了玄关的作用。一侧的墙面装上一块换衣镜,还能从视觉拉伸空间。或许有些朋友认为,小户型空间装修不应该去设置硬隔断,这样会让空间变得拥挤。如果和本案这样来设计的话,个人认为还是可以的,毕竟玄关的后方就是厨房,稍稍遮挡会更加实用。
客厅的面积十分狭小,加上平时也没有太多时间看电视,所以客厅里没有配沙发和电视,虽然没有了客厅的感觉,但个人认为这样的设计对于小空间来说再合适不过了。灰色乳胶漆装饰的墙面,地面铺上棕色木地板,再配上一张舒适的懒人沙发和小巧的茶几,简洁大方又温馨舒适。特别是窗台下带抽屉的飘窗设计,功能性和装饰效果都无可挑剔。
客厅的一侧就是开放式的厨房空间,特意根据空间的实际情况定制了一套收纳空间非常充足的橱柜,伸出的这部分既是吧台,又是隔断,下方还有着很大的收纳空间,堪称是最实用的橱柜设计方式。
由于家里的没有阳台,在定制橱柜时预留了洗衣机和冰箱的位置,将冰箱和洗衣机全部放置在厨房,虽然油烟会比较严重,但只要平时多花点时间来打理,也不必过于担心,关键是这样设计特别省地方。
餐厅位置的大小十分有限,采用定制卡座的方式来设计,并且在卡座的一侧定制了一面白色的储物柜,收纳设计真的非常用心。转角式卡座,配上一张小餐桌加一把漂亮的餐椅,可以满足五个人同时用餐,虽然稍显拥挤,却依旧特别实用,如果你家也是小户型空间,这样的设计方式值得借鉴。灰色乳胶漆装饰的墙面,挂上电视和黑色置物搁板,色彩搭配也非常舒服。
白色的餐边柜和卡座连成一体,收纳能力真的特别强大,再摆上装饰品和花篮,打造出令人羡慕的时尚家居环境。
浴室柜被安装在卫生间的外面,两扇门分别是儿童房房门和卫生间门,白色为主的设计特别干净。浴室柜上方特意挑选了一个带收纳空间的镜柜,真的是不放过任何一处可以收纳地方。
卫生间的装修效果,浅灰色墙面地面,搭配白色马桶等卫浴洁具,干净清爽的空间总是显得很耐看。特别是墙面上的壁龛设计,用玻璃分成多个储物格,各种洗浴用品都有自己专用的摆放位置。
如果你家也是一套面积不大的小户型,自己又是个居家过日子的实在人,那么就按本案这样来设计吧,装修出来的空间家居氛围更温馨,还特别实用。
本内容为作者独立观点,不代表“未来家”立场。如对本稿件文字及图片有异议,请联系在线客服!
“未来家”让装修更简单





