浴室柜装厨房门外真奇葩,很少见的北欧风小户型,装修效果很不错!

现实生活中,许多房子的户型设计有些奇葩,对于这些不多见的户型装修,设计时确实需要花费更多的心思。使用面积大概70平米的小两房,整体采用舒适的北欧风来设计,居然将浴室柜安装在厨房门外,客厅里还没有阳台,但整体的装修效果却依然很不错。下面就和“未来家装网”一起来看看这套户型有些奇葩的北欧风小户型装修案例!
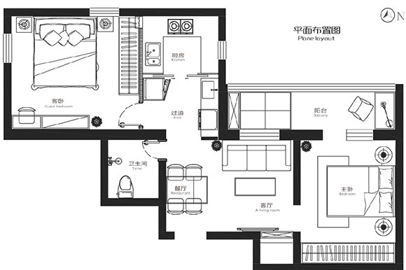
先来看看本案的户型图设计,从户型图中可以看出,两间卧室的面积不错,但相隔的距非常远,特别是主要卧室,如果要去到卫生间,需要横穿整个客厅。唯一的阳台居然被设置在主卧室里,由于卫生间的面积实在太小,只能将浴室柜安装在厨房门外。不合理的户型布局,自然要通过美观实用的装修设计来弥补这一缺陷。
进门就见餐厅,对面就是用玻璃推拉门隔开的厨房,厨房玻璃门外的空间不仅安装了浴室柜,更摆放了冰箱、洗衣机,空间的利用率还是非常不错的。半人高的砖砌矮墙对洗衣机和浴室柜稍稍遮挡,同时也起到了隔断空间的作用。
简易的实木餐桌,铺上简洁的防水桌布,再配上两把漂亮的餐椅,墙面再刷上墨绿色乳胶漆来装饰,虽然有些紧凑的空间,家居氛围倒是十分温馨。餐桌一侧的黑色边框玻璃门后就是卫生间,面积非常小,所以只能将浴室柜安装了厨房的外面。
全屋的装修设计十分简洁,墙面刷上白色乳胶漆,地面铺上原木色地板,简洁大方的设计看起来的效果倒是特别舒服。客厅的面积不大,也没有阳台,唯一的采光源就是沙发墙上凿开的孔洞,借用卧室阳台来为室内提供采光。一套三人位的简易灰色布艺沙发,搭配一张简洁的白色茶几,稍显简陋的设计很有北欧风慵懒的特点。电视机直接安装在墙面上,下方放置了一张半人高的原木色矮柜,很有生活气息的客厅让人感觉特别舒服。
厨房的装修效果,定制了一组U型原木色橱柜,面积不大有些拥挤,但基本可以满足家人的用餐要求。玻璃推拉门隔开的设计方式,也不必担心烹饪时油烟会扩散。
厨房门外的墙面安装了浴室柜,并预留了洗衣机的位置,墙面再装上挂墙式的吊柜,提升家中的收纳能力,真的是每一寸空间都不放过。
主卧室的面积还算不错,将家中唯一的阳台打通后,让卧室看起来显得很宽敞。床头背景墙的颜色十分醒目,并悬挂了一幅黑色边框装饰画来点缀,北欧风的慵懒舒适带来更加惬意的生活方式。
利用墙面定制了一组到顶的白色衣柜,解决衣物的收纳问题,空间利用也更加充分。
次卧室的面积同样不错,整体的装修设计也十分简洁,白色的墙面,原木色的地面,搭配黑色的床架,虽然没有亮眼的设计效果,给人的感觉却是特别舒服。
本内容为作者独立观点,不代表“未来家”立场。如对本稿件文字及图片有异议,请联系在线客服!
“未来家”让装修更简单





