餐边柜当隔断墙,浅蓝色乳胶漆墙面,不规则客厅这样装修真漂亮!

面积非常不错的三房,屋主将其设计成两房,墙面采用浅蓝色乳胶漆来装饰,地面铺上原木色木地板,简洁大方的家居环境家居氛围特别温馨。三房改两房虽然有空间浪费的可能,但如果家里人不多,根本不需要三间卧室,那么将其改成两房后,能够提升家居生活的舒适性,不失为一种非常不错的设计方式。下面就和“未来家装网”一起来看看这套三房改两房的装修案例!
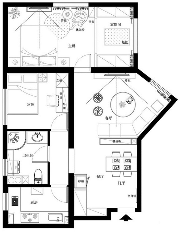
先来看看本案的户型图,不是很方正的户型,完全可以做三房,但屋主为了提升家居生活的舒适性,只设计了两房,面积超大的主卧室里设计了步入式的衣帽间。不规则的客厅空间设计也非常巧妙,利用半人高的餐边柜隔出了相对独立的餐厅,空间利用更充分也更加实用。
客厅的面积非常不错,浅蓝色乳胶漆墙面特别好看,地面铺上原木色木地板,局部安装了造型简洁的吊顶,白色的门洞和踢脚线,色彩搭配简约清新特别清爽。电视背景墙没有过多的设计,原木色电视柜,墙面再装上白色吊柜,设计简法大方十分耐看。
深蓝色布艺沙发,搭配白色的圆形小茶几,虽然空间不规则,但利用率非常高。大大的落地玻璃窗,让室内的采光效果非常好。沙发的后面就是定制的白色餐边柜,隔断空间的同时更提升了家里的收纳能力。
白色文化石装饰的局部墙面,安装几块置物搁板,提升空间的设计感和品位。
进门就是餐厅,餐边柜式隔断真的非常巧妙,再搭配一张原木色的简易餐桌和四把黄色的餐椅,不仅满足了用餐的基本要求,整体的设计效果、色彩搭配也堪称完美。进门右手边的墙面安装了一面换衣镜,左手边是定制的白色鞋柜,温馨惬意的家居环境让人感觉特别幸福。
两间卧室改成一间,更宽敞的居住环境带来更加愉悦的家居心情。整体的装修设计依然非常简洁,米黄色乳胶漆装饰的墙面特别耐看,和原木色的地板一起营造出温馨舒适的家居氛围。
步入式的衣帽间,不仅解决了衣服的收纳问题,装上晾衣架还能晾晒衣物,功能如此强大的衣帽间还真是特别实用。
最后来看看卫生间的装修,深灰色瓷砖装饰的墙面和地面,配上白色的浴室柜、洗手台盆和马桶,有点酷炫的设计效果显得很有个性。利用墙面拐角位置安装了独立的玻璃淋浴房,洗澡时地面不会积水,干湿分离的卫浴环境不会太潮湿。浴室柜上的墙面安装了白色的置物搁板,不仅可以用来摆放洗浴用品,还可以摆装饰品,提升卫生间的装饰效果。
那么,如果家里的房子原来也是三房,你会考虑在装修时将其改成两房吗?
本内容为作者独立观点,不代表“未来家”立场。如对本稿件文字及图片有异议,请联系在线客服!
“未来家”让装修更简单





