见过最漂亮的小户型设计,大白墙加蓝色柜子,效果简约却很上档次!

小户型空间装修一定没档次吗?当然不是了,这主要还是看色彩设计与软装搭配是否恰当!60多平米的小两房,整体采用十分简洁的现代风格来设计,局部采用深蓝色来装饰,再搭配有点轻奢质感的家具,营造出的家居环境看起来特别漂亮。下面就和“未来家装网”一起来看看这套特别漂亮的小户型装修设计效果图!
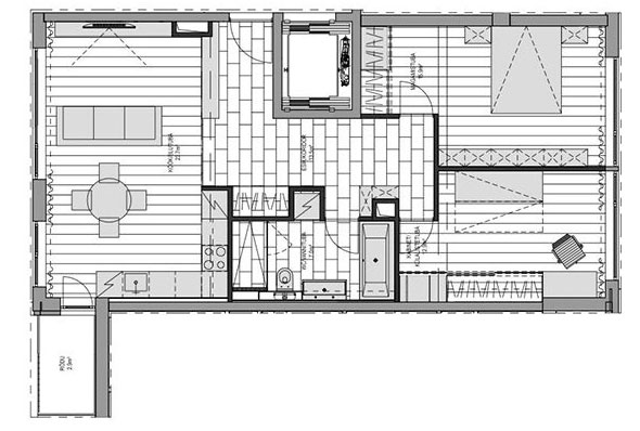
先来看看本案的户型图,标准的小两房户型,进门右手边利用定制储物柜进行空间隔断,增加室内的私密性。开放式厨房和餐厅位于客厅沙发的后面,家里唯一的阳台面很小,在厨房外。整个户型十分方正,空间的利用率很高。虽然是两房,只设置了一间卧室,另外一间卧室则设计成书房。无论是单身还是小两口,这样的小空间都有着非常不错的舒适性。
整体的设计效果十分简洁,墙面刷上白色乳胶漆,地面铺上棕色木地板,没有吊顶的客厅看起来却特别时尚上档次,这都得益于正确的色彩设计。白色的电视背景墙没有过多的装饰,定制的深蓝色电视柜采用挂墙式安装,底部留空的设计方式,不仅让打扫卫生更方便,也不会占据地面空间。
浅灰色布艺沙发,搭配一张圆形的黑色茶几及单人小沙发,舒适的家居氛围看起来似乎有点小资的感觉。特别是定制的储物柜式隔断墙,既起到了隔断空间的作用,更提升了空间的装饰效果和档次。深蓝色的柜,配上上黑色的小拉手,居然有种轻奢风的格调与品位。
通往卫生间、卧室的过道,利用深蓝色板材定制的储物柜,既装饰了墙面,更提升了家中的收纳能力。储物柜和定制的橱柜连成一体,空间利用特别充分。
黑色圆形餐桌配几把黑色餐椅,直接摆放在沙发后方,黑色、深蓝色、棕色的色彩搭配看起来真是非常高级。餐厅和客厅上方中间位置安装了造型简约时尚的金色吊顶,大大提升了整体的装修档次。
开放式的厨房,深蓝色定制橱柜,配上黑色的石材台面,效果非常上档次。唯一的阳台利用玻璃门进行隔开,满足衣物晾晒的实际需求。
卧室的设计依然非常简洁,白色的墙面,棕色的地面,配上浅灰色布艺软包床架,极简的设计效果却很有高级感,用当下比较流行的词来形容就是有“逼格”!房门后就是定制的深蓝色衣柜,床尾墙面安装了深蓝色的挂墙式电视柜,与客厅的设计效果雷同。床头柜的造型设计非常漂亮,浅蓝色的挂墙式半圆形设计真是令人耳目一新。
另外一间卧室设计成书房,摆上浅灰色布艺沙发和圆形小茶,利用墙面定制了一排深蓝色的书柜,特别上档次的小户型空间装修设计。
本内容为作者独立观点,不代表“未来家”立场。如对本稿件文字及图片有异议,请联系在线客服!
“未来家”让装修更简单





