美观大方的去风格化装修,色彩搭配很跳跃,堪称教科书式设计!

一般来说,色彩搭配是家庭装修的灵魂,不同的色彩搭配营造出的家居空间效果有着很大的区别,装修风格与色彩搭配也有着千丝万缕的联系。虽然一直说家庭装修时主色调最好不要超过三个,但很多时候人们对于家庭装修的要求,让你不得不采用更多的色彩搭配,来营造出一种极具跳跃感的家居环境。下面就和“未来家装网”一起来看看这套色彩搭配很跳跃的去风格化装修案例!
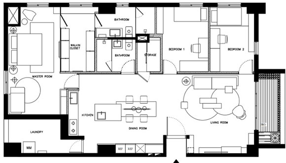
先来看看本案的户型图,非常方正的户型,得房率超高。主卧室的面积超大,有独立的衣帽间和卫生间。另外的两间小卧室面积都算不错,能够满足两孩家庭的使用。客餐厅一体加开放式厨房,餐厅位置的面积非常宽敞。
虽然不是南北通透的户型,但清爽的配色设计加上简洁的硬装,室内看起来依然十分敞亮。浅灰色布艺沙发,搭配一张纯黄色的懒人沙发,前面再摆上一张北欧风的圆形小茶几,不华丽也没有什么设计感的空间却让人感觉格外舒服,带来无拘无束的家居生活。沙发后的墙面也没有多余装饰,一幅小规格的装饰画直接摆在沙发靠背上,设计简洁却也美观大方。
电视背景墙采用水泥色乳胶漆来装饰,下方安装了挂墙式的简易电视柜,蓝色的电视柜与纯黄色的懒人沙发形成一定的色彩对比,跳跃色的使用让家居环境显得更加活泼。沙发墙一侧的墙面拐角位置,居然安装了几块嫩绿色的置物搁板,虽然收纳能力一般,但装饰效果却非常不错。
开放式厨房和餐厅,虽然全屋地面采用木板来装饰,但烹饪区的地面和墙面则选择了带图案的瓷砖来装饰,打理起来更加方便。
长方形棕色餐桌和定制的白色工作台连成一体,工作台上不仅安装了水槽和水龙头,底部更是设计成了收纳柜,能够解决更多厨房用品的收纳问题。餐厅和厨房一侧的墙面,定制了一组灰色的储物柜,充分利用现有空间拓展家里的收纳能力。
面积非常宽敞的主卧室,装修设计非常简洁,但纯黄色的布艺沙发和红色图案的装饰画让空间看起来特别有活力。
衣帽间里居然定制了蓝色的收纳柜,强烈的对比色使用还真是有着令人耳目一新的效果。
次卧室的装修效果,简洁的硬装设计,居然定制了一组粉色调的衣柜。
本套装修案例采用去风格化设计,最大的亮点就在于色彩的搭配效果,白色为主的空间,大胆使用黄色、蓝色、绿色、粉色来点缀,跳跃的色彩设计营造出快乐活泼的家居环境,非常值得借鉴。
本内容为作者独立观点,不代表“未来家”立场。如对本稿件文字及图片有异议,请联系在线客服!
“未来家”让装修更简单





