简洁明亮的三口之家,全屋收纳设计真强大,美观实用不易过时!

无论家里的面积是大还是小,装修时对于收纳空间的设计都不可太大意,合理的收纳空间设置,才能让家居空间看起来不会太凌乱,带来更加愉悦的家居心情。这是一套面积非常不错的大户型空间,屋主却将其隔成了多个功能性空间,其中包括两间卧室,一间书房外加一间儿童娱乐室。虽然面积很大,但单个空间却似乎有些紧凑。好在整体采用相对简洁的现代风格来设,虽然每个空间的面积都不是很大,却也并没有拥挤的感觉。下面就和“未来家装网”一起来看看这套简洁明亮、全屋收纳设计特别强大的简约现代风格装修设计案例!
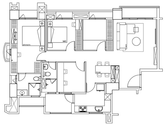
先来看看本案的户型图,非常方正的户型布局,150平米左右的建筑面积,被隔成多个功能性空间。带卫生间的主卧室面积最大,书房的面积最小,对于一家三口来说,这样的空间有着非常舒适的家居体验。厨房和客厅外各有一个阳台,整个空间的使用率也非常高。
客厅的面积不是很大,十分简洁的硬装设计,地面采用木地板来装饰,墙面刷上白色乳胶漆,局部安装了造型简洁的吊顶,简约清爽的设计效果,带来格外舒适的家居生活。客厅和阳台之间采用带百叶窗的木门进行隔开,相对于悬挂窗帘来说,这样的设计方式或许少了一些温馨的家居氛围,却也有着十分醒目的视觉效果。体积小巧的浅灰色布艺沙发,搭配北欧风的小茶几,营造出的家居氛围依然特别舒服。
电视背景墙的设计非常巧妙,灰色砖形图案墙纸贴满了整面墙,中间位置用木板定制了一组挂墙式电视柜,装饰墙面的同时还能起到一定的收纳作用。电视背景墙的下方没有摆放电视柜,让人感觉客厅更加宽敞。对于面积不大的客厅来说,完全可以不用电视柜,虽然少了一些客厅的感觉,但宽松的空间会带来更加舒适的生活体验。
通往餐厅、卫生间和卧室的过道。左侧的白色储物柜,不仅是家里的鞋柜,也是餐厅的餐边柜,收纳能力非常不错。将鞋柜、餐边柜的功能融为一体,既隔断了空间,又提升了家中的收纳能力,这样的设计方式真是非常巧妙,也特别实用。
餐厅位置的面积不是很大,一张原木色实木餐桌,搭配几把造型简约的实木餐椅,完全能够满足一家三口的用餐要求。餐桌的旁边就是餐边柜和鞋柜,两边都设置了柜门,不必担心鞋柜内的异味会进入餐边柜。
面积非常不错的主卧室,主人在床尾墙面定制了整面墙的衣柜,所以看起来稍稍有些拥挤。整体的装修设计依然十分简洁,灰色的布艺窗帘,原木色的床头柜,简洁大方又不失温馨的家居氛围。
白色的衣柜直接做到顶,中间嵌入了书桌/梳妆台,同时更实现了电视柜的作用。
儿童房的配色设计和主卧室保持一致,虽然少了一些活泼与可爱的感觉,但对于年龄较大的小朋友来说,这样的卧室设计还是非常不错的。
儿童娱乐室的设计,利用其中一面墙定制了一组造型较为卡通的收纳柜,方便小朋友玩具的收纳,同时也间接提升了家中的收纳能力。
本案最大的亮点就是除了客厅外,其他空间都定制了大量的收纳柜,虽然压缩了部分空间,却也并不影响正常的家居生活。开放式空间有着非常大气的视觉效果,但相对来说收纳能力却非常一般。如果对于收纳的要求比较高,那么将开放式空间隔成多个功能性空间,可以更好的发挥出空间的作用,提升空间的实用性。
本内容为作者独立观点,不代表“未来家”立场。如对本稿件文字及图片有异议,请联系在线客服!
“未来家”让装修更简单





