特别高级的大户型装修,现代风格空间居然有点轻奢感,完美!

这是一套接近200平米的大户型空间,整体采用现代风格来设计,局部融入轻奢风的设计元素,营造出的家居环境既有现代风格的时尚感,同时也兼具了轻奢风的格调与高级感。对于大户型空间来说,许多人在装修设计时,首选的可能是美式风格或者是欧式风格。选择现代风格来设计大户型,个人感觉更能够满足现代人对家居空间的使用要求。下面就和“未来家装网”一起来看看这套有点轻奢效果,并且特别高级的现代风格大户型装修设计案例!
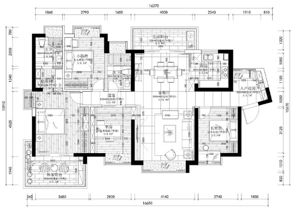
先来看看本案的户型图,三间卧室加一间书房,餐厅和客厅的面积都非常大,南北通透的空间带来更加开阔的视野,以及更加舒适的家居体验。特别是主卧室,面积非常大,有独立的卫生间、衣帽间,还有一个大大的阳台,看户型图就能让人感觉到特别阔绰。
面积非常大的客厅,虽然没有阳台,但大大的玻璃窗加上南北通透的户型,室内的采光效果依然十分充足。整体采用相对简洁的现代风格来设计,地面铺上灰色瓷砖,墙面刷上乳胶漆,顶部四周安装了造型简洁的吊顶,并且利用白色的石膏线进行简单的造型处理,提升了客厅的装修档次。电视背景墙采用淡灰色纹理的瓷砖来装饰,在墙面的一侧安装了嵌入式的储物柜,主要用来展示装饰性小摆件。
造型简约却很大气的白色布艺沙,配上一张棕色长方形茶几,角落里利用花架和落地灯来点缀,简约时尚又特别大气,有高级感。沙发背景墙的中间采用一幅装饰画来点缀,墙面两侧利用棕色集成板材来装饰,提升客厅装修档次的同时,也有着非常不错的设计感。
客餐厅一体加上南北通透的户型,整个空间看起来视野开阔,宽敞的家居环境显得特别大气。客厅和餐厅顶部的吊顶造型完全一致,并且连成一体,间接从视觉上拉伸了空间的宽敞感。
餐厅的面积非常不错,外面还有一个独立的阳台,利用玻璃推拉门进行隔开,独立的阳台主要用于家人衣服的晾晒。整体的设计依然是现代风格,浅灰色集成板材装饰的墙面,配上一盏造型时尚的现代风格吊灯,营造出的家居环境,居然有一种轻奢风的格调与高级感。造型简洁的长方形餐桌,配上几把浅棕色皮艺餐椅,靠墙位置摆放了一张低矮的储物柜,既有现代风格的时尚感又有轻奢风的高雅格调,这样的餐厅装修效果还真是难得一见。
厨房的面积同样非常不错,深灰色瓷砖装饰的墙面和地面,配上定制的白色橱柜和台面,再安装黑色的厨具,黑白灰色的空间简洁时尚,也特别有高级感。
带阳台的主卧室面积非常宽敞,地面采用棕色木地板来装饰,墙面刷上白色乳胶漆,顶部四周同样安装了造型简洁的吊顶,来提升装修档次。灰色集成板材装饰的床头背景墙,中间不规则的细线条让卧室更具设计感。床尾墙面定制了一面白色电视柜,提升卧室的收纳能力,再配上一张淡灰色布艺床架和原木色床头柜,简约时尚特别舒服。金色外罩的台灯,辅助照明的同时,更提升了卧室的装修档次,让现代风格的空间居然有种轻奢风的高雅格调。
主卧室和卫生间之间是相对独立的衣帽间,在定制衣柜的时候,特别融入了梳妆台,提升衣帽间的功能性。
卫生间的面积也非常不错,淡灰色为主的空间,搭配白色的浴室柜和卫浴洁具,干净清爽,特别有设计感。利用墙面拐角位置安装了玻璃淋浴间,避免洗澡时地面积水的问题。
如果你家也是面积非常大的大户型,装修时会选择现代风格来设计吗?
本内容为作者独立观点,不代表“未来家”立场。如对本稿件文字及图片有异议,请联系在线客服!
“未来家”让装修更简单





