暖色调的简约风格三房装修,设计简洁清爽越住越舒服,令人羡慕!

能够让人感觉到温馨,是许多人对于家的想法。华丽的装修效果、高档的装修材料不一定能够满足人们对于温暖的要求,相反,简洁的装修设计能够让人更容易感受到家的温暖,住着也会更加舒服。比如面积不大的本案,整体的装修设计非常简洁,白色为主的空间,利用原木色来点缀,营造出的家居环境就特别温暖,简洁清爽的家居环境也让感觉越住越舒服。下面就和“未来家装网”一起来看看这套设计简洁清爽感觉越住越舒服的暖色调简约风格三房装修设计案例!
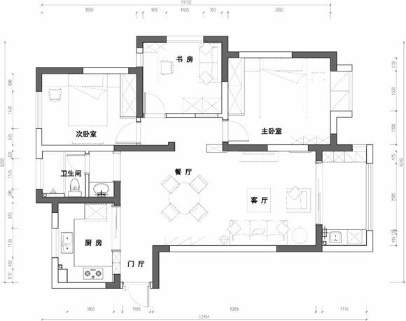
先来看看本案的户型图,标准的三房户型,虽然面积不大,但两间卧室、一间书房的空间布局,能够满足当下绝大多数家庭的使用要求。进门左手边就是用玻璃门隔开的厨房,全屋只有客厅一个阳台,空间的利用率高也非常实用。
虽然不是南北通透的户型,但客餐厅一体的空间布局,加上厨房里也有一扇朝外的窗户,所以室内看起来依然明亮而通透。整体采用简约风格来设计,墙面刷上浅色调的乳胶漆,地面铺上原木色木地板,顶部四周安装了造型简洁的吊顶,简洁清爽的空间让人感觉特别舒服。
虽然客厅的面积不是很大,却依然保留了独立的阳台空间,毕竟衣物的晾晒还是需要地方。没有去定制储物柜,让面积不大的客厅依然宽敞。电视背景墙没有任何的装饰,地面放置了一张简易电视柜,液晶电视直接放在墙面上,给家人留出更大的活动空间。
浅灰色双人位布艺小沙发,搭配一张很有设计感的原木色茶几,简洁大方却也不失温馨的家居氛围。沙发背景墙利用三幅黑色边框装饰画来点缀,装饰墙面的同时,更提升了客厅的装饰效果。暖色调为主的空间,利用蓝灰色布艺窗帘来打破这一平衡,视觉效果非常不错。
站在餐厅来看看整个空间,视野开阔、通透明亮的空间虽然设计不华丽,舒适性却感觉非常不错。
餐厅里居然搭配了一张圆形餐桌,这在小户型空间里还真是很少见。
书房的面积十分紧凑,墙面采用淡蓝色乳胶漆来装饰,没有去定制满墙的书柜,仅仅摆放了一张造型简洁的书桌,让日后空间的改造更加方便。
主卧室的装修效果,墙面乳胶漆的颜色和客厅保持一致,米黄色让人感觉特别温暖。搭配深灰色布艺软包床架和深灰色布艺窗帘,特别舒服的配色设计。
次卧室的床头背景墙采用灰色硅藻泥来装饰,其他墙面依然是米黄色乳胶漆,不华丽、不高级的卧室空间,却让人感觉更加轻松、更加舒服。
本内容为作者独立观点,不代表“未来家”立场。如对本稿件文字及图片有异议,请联系在线客服!
“未来家”让装修更简单





