40年的二手房装修,极简的黑白灰时尚空间,根本看不出是二手房!

2020-09-11 
一套来自国外的二手房装修设计,近40年的房龄,经过翻新设计后,让老房子焕发出时尚的现代感,拆除不必要隔墙,增加室内的采光效果,营造出的极简空间看起来特别时尚。下面就和“未来家装网”一起来看看这套有40年房龄的二手房装修设计案例!
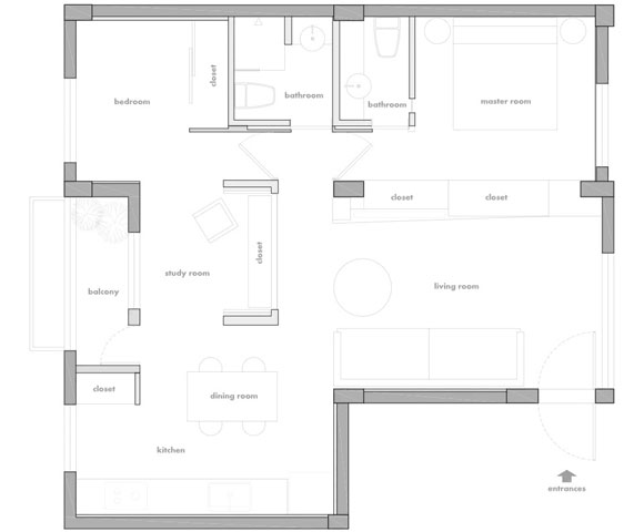
先来看看改造之后的户型布局图,两间卧室加两间卫生间,还有一个开放式的书房,全屋空间的利用率非常高。拆除大量的隔墙,书房的墙面安装了玻璃,既保证了书房的独立性,又让空间看起来更加通透,也增加了室内的采光效果。
整体的硬装部分非常简洁,白色为主的极简空间,利用灰色、黑色来点缀,简洁大方又不失时尚的设计感。白色乳胶漆装饰的墙面,地面铺上木地板,局部安装了吊顶来增加空间的层次感。
客厅的面积不是很大,屋主特意挑选了一套浅灰色皮艺沙发来搭配,虽然了没有布艺沙发的温馨感,却也让整体的装修效果显得更上档次。沙发后的墙面没有任何装饰,一面白墙居然没有丝毫的单调感。
电视背景墙的设计方式也极为少见,嵌入式的电视居然没有居中。
书房和客厅之间虽然安装了玻璃墙进行隔开,但两侧却留空,这种半开放式的设计方式真是值得借鉴。不会影响室内的采光效果,又让室内空间显得更有层次感和趣味性。
开放式设计的厨房,依然是经典的黑白灰配色,顶部居然没有安装吊顶,这也是国外家庭装修时的常见方式。
本内容为作者独立观点,不代表“未来家”立场。如对本稿件文字及图片有异议,请联系在线客服!
“未来家”让装修更简单





