把餐厅包进厨房,卧室装隐形门,这套小户型设计效果很高级!

对于面积不大的小户型来说,许多朋友在装修时都不会太在意,也没有过多的设计,虽然能够满足居住要求,却丝毫没有设计感可言。其实,面积再小的空间,适当的设计还是非常有必要的,不仅能够充分发挥出空间的功能性,提升空间实用性和美观性,甚至能够营造出更具高级感的家居环境。下面就和“未来家装网”一起来看看这套效果很高级的小户型装修设计效果图!
不到70平米的小两房,虽然有两间卧室,却没有厨房和餐厅的位置,想要满足正常家居生活的要求,如何规划出厨房和餐厅是个不得不考虑的问题。
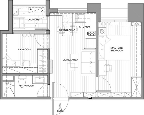
先来看看本案的户型图,标准的小两房户型,没有独立的厨房,直接把开放式厨房设置在客厅,并且定制了吧台当餐桌用,虽然面积不在,但所有功能一应俱全,加上有两间卧室,完全可以满足一家三口的居住要求。
进门就见客厅,右手边的墙面定制了一组储物柜,兼具了鞋柜的功能。左手边就是电视背景墙,利用石材来装饰,看起来会显得更有高级感。
卧室和卫生间的门采用隐藏式设计,保证了墙面的统一性。
灰色布艺小沙发,配上简易圆形小茶几,简约时尚又不失设计感。沙发后的墙面利用装饰条来点缀,整个空间虽然面积不大,但采用现代风格来设计的效果看起来依然高级而时尚。
没有独立的餐厅,直接把定制的橱柜安装在客厅的窗户旁,虽然压缩了客厅的大小,却实现了厨房和餐厅的所有功能。特别是厨房中间定制的小吧台最为实用,满足家人用餐要求的同时,还拥有一定的收纳能力。
主卧室的设计效果,淡淡的茶色调看起来感觉特别有艺术感,特别是床头背景墙的设计效果,高级又上档次。
儿童房的面积十分狭小,采用定制的榻榻米来设计,并且利用墙面安装了挂墙式书桌和吊柜,大大提升了空间的功能性和实用性。
本内容为作者独立观点,不代表“未来家”立场。如对本稿件文字及图片有异议,请联系在线客服!
“未来家”让装修更简单





