灰色调的现代风格空间,客厅装吧台,阳台改榻榻米,美观更实用!

面积非常不错的两房户型,采用现代风格设计,整个空间以灰色调为主进行设计,虽然没有高级灰的效果,看起来却依旧时尚而极具设计感,再把客厅阳台打通后安装榻榻米,不仅提升了空间的利用率,还能当客房使用。现代风格装修的空间,适当融入不同装修风格的设计元素,就能营造出与众不同的设计效果。以灰色调为主来设计的本案,没有靓丽色彩的空间,看起来有点黑白照片的视觉效果,绝对值得家庭装修选择。下面就和“未来家装网”一起来看看这套美观更实用的灰色调现代风格装修设计案例!
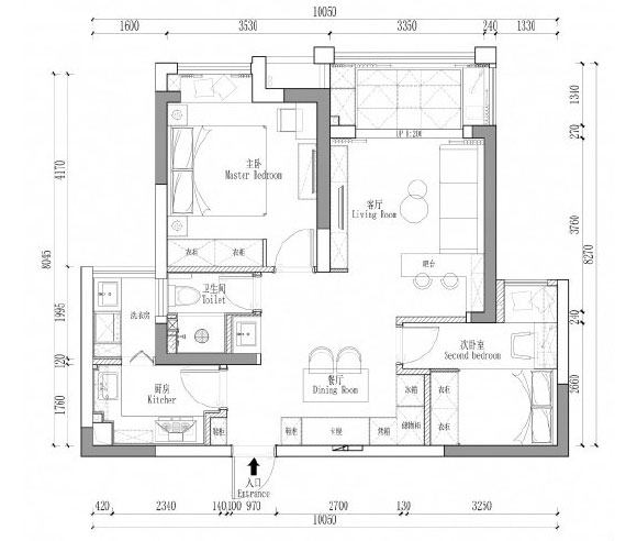
先来看看本案的户型图,面积在两房户型里算是非常不错的,有相对独立的餐厅,并且在客厅里安装了吧台,不拥挤的空间对于一家三口来说,居住体验会更加舒服。
整个空间以白色加灰色来设计,大面积的灰色调看起来非常有设计感。
最喜欢的就是客厅阳台的装修方式,打通后设计成榻榻米,不仅可以用来收纳家居物品,还能当客房使用,也让家居氛围显得更加温馨,这样的设计方式真是美观又实用。
客厅的面积还算不错,屋主居然利用定制的吧台将客厅一分为二,不仅拓展了空间的功能性,也让家居生活变得更加惬意有情调。
淡灰色乳胶漆装饰的墙面,搭配浅灰色的布艺小沙发,沙发前再摆上一张北欧风白色圆形小茶几,轻松营造出温馨而舒适的家居氛围。黑色边框装饰画直接摆在沙发靠背上,大画面的装饰,带来强烈的视觉冲击。
电视背景墙采用定制的白色电视柜设计,把电视嵌入其中,不仅大大提升了家里的收纳能力,看起来也非常漂亮。
相对独立的餐厅空间,长方形简易餐桌,搭配两把黑色的餐椅,利用墙面定制了卡座,这样的餐厅装修还真是很有设计感。
独立的厨房,面积非常不错,整体的配色依然是白色与灰色,干净清爽又层次分明。除了定制的白色橱柜外,更在墙面安装了挂钩,拓展厨房的收纳能力。白色的橱柜,配合黑色的拉手,不仅开启方便,配色设计更是特别经典。
主卧室的装修效果,没有靓丽的配色设计,整个空间却特别温馨舒适。
卫生间的浴室柜采用外移式设计,对于只有一个卫生间的户型来说,这样的设计方式会更加实用。
本内容为作者独立观点,不代表“未来家”立场。如对本稿件文字及图片有异议,请联系在线客服!
“未来家”让装修更简单





