80㎡简约风格两房装修,去客厅化设计真是很不同,再换房也要这么装!

面积还算不错的两房,采用简约风格设计,客厅里居然没有配沙发和茶几,而是放置了懒人沙发和帐篷,营造出的家居环境显得更加惬意,去客厅化设计可以懒洋洋的躺在懒人沙发中,享受家居生活所带来的那种轻松与舒适。下面就和“未来家装网”一起来看看这套去客厅化设计的80㎡简约风格两房装修案例!
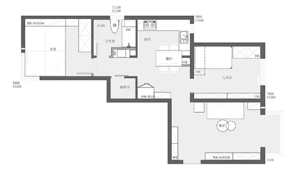
先来看看本案的户型图,面积还算不错,户型不是很好,如果设计得当甚至可以做三房。厨房餐厅一体,提升空间的利用率,墙面拐角位置还设置了杂物间,主卧室和儿童房的面积都比较大。
虽然是简约风格设计,但客厅的顶部四周依然安装了造型简洁的吊顶,再配上一盏造型时尚的小吊灯,营造出的空间效果简约时尚又不乏舒适的家居氛围。地面铺上木地板,墙面采用乳胶漆来装饰,轻松舒适的家居体验看起来特别舒服。
各种手持数码设备的出现,人们观看电视的时间越来越少,所以屋主在客厅里没有配电视,原来的电视柜背景墙采用定制的储物柜来设计,从而提升家里的收纳能力。
客厅里没有配沙发,而是摆放了懒人沙发和零食储物箱,闲暇的时候躺在懒人沙发里,一边刷朋友圈一边吃零食,想想都是一件十分令人羡慕的事情。
从不同的角度来看看整间客厅,这种去客厅化的设计效果真是让人感觉特别有新鲜感。浅蓝色乳胶漆墙面利用照片、装饰挂件来点缀,营造出的家居环境活泼又别具设计感。
开放式厨房布局,并且把餐厅包进厨房,充分利用现有空间,拓展空间的功能性。地面瓷的图案非常别致,菱形图案组拼接出的地面特别醒目。
主卧室的装修效果。
儿童房的装修效果。
卫生间和外移的浴室柜。卫生间的面积不大,却依然安装了浴缸,并且把洗衣机、烘干机等设备放入其中,关键是还没有拥挤的感觉。
本内容为作者独立观点,不代表“未来家”立场。如对本稿件文字及图片有异议,请联系在线客服!
“未来家”让装修更简单





