85㎡浅色系两房装修设计,温馨舒适很时尚,硬装8万全包很超值!

对于很多普通人来说,家庭装修费确实是一大笔开支,或许要省吃省用好几年,所以越来越多家庭选择简装。建面85平米的小两居,采用极简风来设计,全屋的硬装全包不到8万就搞定,但整体的装修效果却特别温馨舒适,看起来也很时尚。虽然说没有什么高级感,更说不上上档次,却能够给全家人提供一处幸福的港湾,不得不说还是非常划算的。下面就和“未来家装网”一起来看看这套设计简约却特别温馨舒适很时尚的85㎡浅色系两房装修设计案例!
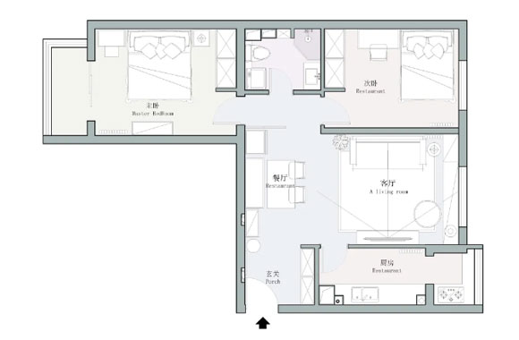
先来看看本案的户型图,非常标准的小两居,空间非常方正,利用率也特别高。客厅没有阳台,阳台位于主卧室和厨房。采用客餐厅一体空间布局,进门就见餐厅。卫生间位于两间卧室的中间,虽然面积不大却也特别实用。
进门过道的装修效果,宽度非常不错,利用一侧的墙面定制了一组到顶的白色鞋柜,收纳能力很强,并且将换鞋凳包进鞋柜,坐下来换鞋会更加舒服。另外一侧的墙面没有过多设计,只是利用装饰画简单点缀。过道的地面采用三种颜色的六边形瓷砖来装饰,看起来显得更加活泼。
整体的硬装非常简单,全屋没有安装吊顶,顶部四周利用石膏线简单装饰,地面铺上木地板,墙面刷上白色乳胶漆,没有高档的装修材料,也没有复杂的造型设计,简洁清爽又不失时尚感,关键是超低的装修费用,普通的工薪阶层也能承担得起。
客餐厅一体的空间布局,中间没有设置任何的隔断,加上白色为主的配色设计,整个空间看起来特别明亮,更没有丝毫的拥挤感。
蓝色双人位布艺小沙发,搭配北欧风圆形茶几组合,看起来简洁大方甚至是有些“简陋”,但不得不说特别实用。沙发后的墙面利用两幅装饰画来点缀,避免过于单调。冰箱摆在沙发的旁边,充当客厅和餐厅之间的隔断。
餐厅的装修同样非常简洁,铺有桌布的实木餐桌,搭配四把舒适的布艺餐椅,温馨的用餐画面带来幸福的家居生活。装饰画、吊灯、筒灯的点缀,不需要太多的费用就能提升餐厅的装饰效果,屋主还真是一位精打细算会过日子的聪明人。
厨房的装修效果,灰色瓷砖装饰的墙面和地面,搭配定制的原木色橱柜,清爽整洁又不失设计感,关键是给的感觉特别舒服。厨房和小阳台之间没有装门,让厨房看起来显得更加宽敞。
带阳台的主卧室,中间利用玻璃推拉门隔开。床头背景墙采用蓝色乳胶漆来装饰,增加空间的层次感,营造出的视觉效果简约而时尚。床头两侧没有配床头柜,而是摆放了一张梳妆台,满足女主人的使用要求。
许多朋友认为卧室里一定要放床头柜,其实,对于面积不大的卧室来说,完全可以购置一张大小合适的梳妆台来代替床头柜,相对而言会更加实用。
采用粉色调来设计的次卧室,整体的设计和主卧室类似,床头一侧放置了一张电脑桌,满足小朋友的学习要求。
卫生间的面积不大,墙面和地面采用灰色瓷砖来装饰,利用墙面转角位置安装了独立的玻璃淋浴房,看起来也是特别干净。
对于装修预算不多的朋友来说,建议选择简约风格来装修,虽然说装修效果会稍显“简陋”,但长久的家居生活,设计简洁的家反而会更有家的感觉。
本内容为作者独立观点,不代表“未来家”立场。如对本稿件文字及图片有异议,请联系在线客服!
“未来家”让装修更简单





