50㎡居然能做两房,还有衣帽间,小户型就该这么装,真心实用!

50平米的一居室户型,将客厅一分为二隔出一间独立卧室,从而满足了一家三口的居住要求,不有仅独立的厨房、餐厅和卫生间,居然还有一间独立的衣帽间,不得不说真是神改造。对于大多数普通家庭来说,家里买的房子面积都会非常小,如何拓展空间的功能性成为装修时不得不面对的问题,下面就和“未来家装网”一起来看看这套只有50平米却能做两房还有独立衣帽间的小户型装修设计案例!
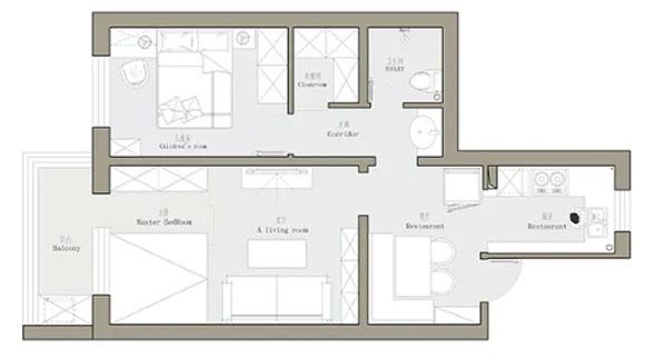
先来看看本案的户型图,标准的一居室空间,进门就见餐厅,餐厅和客厅之间利用砖墙隔开,以保证室内的私密性。屋主是一家三口,原本的一居室肯定无法满足居住要求,所以利用玻璃墙将客厅一分为二,隔出一间独立的小卧室。
整体的硬装部分非常简洁,地面采用木地板来装饰,没有安装吊顶,利用石膏线简单的点缀。
电视背景墙采用蓝色乳胶漆来装饰,搭配一张简易电视柜,以满足家人观看电视的使用要求。
在餐厅和客厅之间的隔墙位置摆放了一组书柜,从而提升了客厅的收纳能力。棕色皮艺沙发,搭配一张圆形小茶几,说不上特别高级,却也基本满足了家人对客厅的使用要求。
沙发后的墙面利用白色砖形文化石来设计,增加空间的个性诉求。
为了避免隔断后的客厅采光不足的问题,特意采用玻璃墙进行隔断,配合推拉式玻璃门设计,既能确保卧室的私密性,又不会降低客厅的亮度,一举两得的设计方式还是非常实用的。
直接把餐厅设置了进门处,或许有些拥挤,但独立的餐厅空间能够让空间的层次感更为丰富。特意挑选了一套可以折叠的餐桌,再搭配两把简易餐椅,靠墙位置定制了卡座,能够同时满足多人的用餐要求,偶尔有亲戚朋友上门也不会太尴尬。转角式卡座和进门鞋柜连成一体,这样的设计方式对于小户型来说真是堪称完美。
餐厅的旁边就是用玻璃门隔开的厨房,白色的墙面和地面,搭配定制的棕褐色橱柜,墙面安装了大量的挂钩和置物架,全面提升厨房的收纳能力。
主卧室的设计效果,床头背景墙采用双色乳胶漆来设计,其余墙面则刷上黄色乳胶漆,看起来特别醒目又不乏设计感。床头一侧放置了一张电脑桌,偶尔在家工作也能满足使用要求。
卧室外用谷仓门隔开的衣帽间。
外移的浴室柜,黑色的浴室柜配上黑色的镜柜,看起来居然有几分美式乡村风格的感觉。
卫生间的面积非常狭小,地面和墙面采用灰色瓷砖来装饰,配上白色的马桶和黑色的花洒等五金件,经典的配色设计看起来倒是特别养眼。
本内容为作者独立观点,不代表“未来家”立场。如对本稿件文字及图片有异议,请联系在线客服!
“未来家”让装修更简单





