别不信,50㎡居然能被改成四间卧室,神设计让人叹为观止!

如果告诉你50平米的一居室能做4房,想必没有人会相信吧!但不可能的事情却并不表示就一定不存在。本案是一套套内面积只有50平米的一居室户型,为了满足屋主的要求,对空间进行重新规划,在客厅里隔出主卧室,原来的主卧室被隔出老人房、女孩房和书房,在厨房里隔出男孩房,从而将一居改造成四居室。虽然有些拥挤,却能够满足全家人的居住要求,这样的神设计还真是让人叹为观止。下面就和“未来家装网”一起来看看这套被改成四间卧室的50㎡小户型装修设计案例!
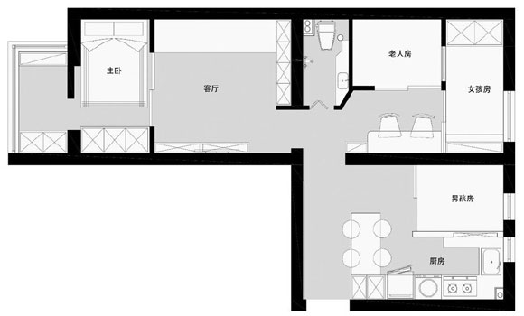
先来看看本案的户型图,标准的一居室,空间的利用率非常高。在客厅利用玻璃推拉门隔出主卧室,原来的主卧室被隔成老人房、女孩房和书房,进门右手边的厨房面积非常不错,轻松隔出了男孩房。另外,厨房、餐厅、卫生间、客厅等功能性空间一应俱全。
被隔断的客厅,整体的硬装非常简洁,乳胶漆装饰的墙面,原木色木地板,由于隔墙采用玻璃来设计,所以客厅看起来依然非常敞亮。
玻璃门的一侧就是主卧室,面积十分狭小,但私密性却非常不错。白天的时候可以打开玻璃门,不影响室内的采光,也不会有过于拥挤的感觉。
淡灰色布艺小沙发,一侧的墙面定制了一组白色的收纳柜,提升家中的收纳能力。
开放式厨房的餐厅,定制的橱柜、餐边柜和进门鞋柜连成一体,再配上一张可以折叠的白色餐桌,轻松实现了烹饪、用餐、收纳的多种功能。洗衣机嵌入橱柜,冰箱嵌入餐边柜,对于空间的利用真是做到了极致。
厨房一侧的男孩房,采用定制的榻榻米来设计,外侧再装上玻璃门,满足睡眠要求的同时,更兼具了收纳功能。
老人房、女孩房同样采用定制的榻榻米来设计,外侧就是小书房,白色的简易书桌靠墙摆放,可以满足两个小朋友同时使用。书桌后的墙面上方安装了吊柜,用来摆小朋友的书籍再合适不过了。
卫生间的面积非常狭小,目测不到3平米,白色为主的设计看起来特别干净。
本案最大的特点就是所有卧室里都没有放床,而是采用定制的榻榻米来设计,或许居住的舒适性一般,但对于普通人来说,拥有一处属于自己的家,拥挤一点又有何妨呢!
本内容为作者独立观点,不代表“未来家”立场。如对本稿件文字及图片有异议,请联系在线客服!
“未来家”让装修更简单





