105㎡三房装修设计,客厅装大飘窗加开放式厨房,全屋美观更实用!

105平米的小三房,整体采用舒适的北欧风设计,客厅没有阳台却安装了长长的飘窗,客餐厅厨房一体的空间布局,虽然不是很宽敞,但舒适的家居体验让人过目不忘,真是美观又实用的三房装修设计方式。下面就和“未来家装网”一起来看看这套美观更实用的105㎡三房装修设计案例!
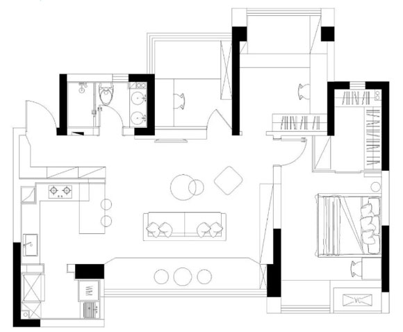
先来看看本案的户型图,标准的三房布局,户型方正空间利用率高,主卧室里的卫生间被设计成衣帽间,拓展了卧室的功能性。两间次卧的面积都很小,全部采用定制的榻榻米来设计,兼具了睡眠、收纳和学习的多种功能。
进门的正对门是定制的鞋柜,鞋柜的后面就是厨房,并且在墙面开了一扇窗,让过道位置看起来更加明亮。鞋柜一侧的墙面采用木地板来装饰,再搭配相同颜色的鞋柜,这样的配色设计简洁大方,还有种温暖的感觉。
整个空间的装修材料非常普通,没有大理石等高档材料,也没特别亮丽的色彩,看起来的效果却更有品位。
采和客餐厅厨房一体的空间布局,让空间看起来格外宽敞,虽然没有阳台,但长长的飘窗设计增加了整体的温馨感,室内的采光效果也非常充足。玻璃窗的窗帘采用百叶窗的方式来设计,保护室内私密性的同时,与整个空间也非常匹配
飘窗采用加宽设计,摆上小花几和坐垫,让闲暇时的家居生活变得更加丰富,大大提升了家居生活的舒适性。
客厅没有安装主照明灯具,利用一排射灯来提供照明,意式风格的黑色皮艺沙发,配上一张圆形的棕色小茶几,简约时尚极具设计感和品位。
电视背景墙的设计更是与众不同,设计简洁时尚又不失个性。
沙发旁的小边几,蓝灰色的矮柜,方便生活的同时更提升了空间的设计感。
客餐厅厨房一体的空间布局,中间利用定制的吧台隔开,兼具餐桌功能的小吧台无论是实用性还是装饰效果都无可挑剔。餐厅、厨房和过道的吊顶更是非常少见,灰色的材质看起来非常有质感。
餐厅与厨房的设计效果,灰色瓷砖装饰的墙面,配上定制的蓝灰色橱柜和原木色的餐桌,配色设计堪称完美。
主卧室的装修效果,硬装部分非常简洁,墙面乳胶漆的颜色更是特别温暖。把原来主卧室里的卫生间改造成独立衣帽间,并且安装了玻璃墙进行隔开,不仅增加了收纳能力,空间的实用性也更高。
另外两间卧室的装修效果同样非常简洁,白色与原木色的搭配感觉特别舒服。利用定制的榻榻米来设计,从而满足了睡眠、收纳和学习的使用要求。
本内容为作者独立观点,不代表“未来家”立场。如对本稿件文字及图片有异议,请联系在线客服!
“未来家”让装修更简单





