客餐厅一体还装了飘窗,电视墙装书柜,这对深圳夫妻的家真阔气!

大概150平米的四居室户型,整体采用现代风格设计,空间利用率高也特别实用,虽然没有高档的装修材料,但简约时尚效果也特别阔气。客餐厅一体的空间布局,满足一家四口三代人的居住要求。下面就和“未来家装网”一起来看看这套非常阔气的现代风格四居室装修设计案例!
屋主是一对大概四十岁的中年夫妻,房子位于深圳,不仅设置了独立的书房,客厅电视背景墙也被设计成大书柜,满足主人对于藏书的收纳要求。
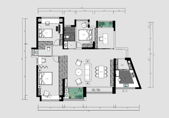
先来看看本案的户型图,三间卧室加一间书房,大开间客厅被一分为二,将沙发后的空间设计成餐厅,拓展了空间的功能性,又不会影响室内的采光。进门左手边是独立的厨房,厨房外是鞋柜区。双卫生间的设计,对于家里人口较多的家庭来说,不会出现排队上厕所的问题。
客餐厅一体的空间布局,让室内看起来特别敞亮,直接把餐桌放置在沙发的后面,既满足了餐厅的所有要求,又不会因为空间隔断而影响室内的采光效果。
现代风格的棕色皮艺沙发,配上造型别致的棕色小茶几,简约时尚又不乏设计感,皮艺材质的沙发更提升了整体的装修档次。
客厅上方的吊顶设计也是本案的一大特点,棕色集成板材设计的平面吊顶,不仅从视觉上对空间进行区分,看起来也特别上档次。吊顶后的客厅没有安装主照明灯具,主要利用多盏筒灯来提供照明,设计效果非常不错。
换个角度来看看整个空间。餐厅一侧的玻璃窗下方设计成飘窗,不仅让家居氛围更加温馨,更能让家居生活更有趣味性,闲暇时坐在飘窗上刷朋友圈、观看室外美景都会是件令人羡慕的生活方式。
客厅电视背景墙采用定制的大书柜来设计,中间位置嵌入液晶电视,不仅看起来的效果非常漂亮,还能让空间更有文艺气息,非常实用的设计方式。
餐厅一侧的墙面采用浅灰色乳胶漆来装饰,下方安装了一组半人高的餐边柜,并且设置了水槽和水龙头,平时在这里洗菜洗碗会更加方便。
进门左手边、厨房外的小空间是鞋柜区,地面采用带图案的瓷砖来装饰,有种美式风格的设计感。换鞋凳采用嵌入式设计,合理的利用现有空间。
厨房的面积还算不错,定制的双色橱柜采用转角式设计,最大化的利用空间拓展了厨房的收纳能力。
橱柜台面采用高低台设计,平时使用会更加方便。
独立的书房没有过多设计,利用玻璃推拉门隔开,磨砂效果的玻璃门,可以更好的保护私密性。由于面积过小,所以没有去定制满屋的柜子,长时间坐在里面不会有压抑的感觉。
主卧室的面积非常不错,不仅有独立的卫生间,还配置了小书桌,大大提升了卧室的功能性。
床尾墙面定制了整面墙的大衣柜,板材的颜色非常有质感。灰色乳胶漆装饰的床头背景墙,不仅看起来特别醒目,更提升了卧室的设计感。
主卧室里的小书桌,不仅可以满足偶尔办公的使用要求,还能当梳妆台使用。
主卧室里的卫生间,壁龛的收纳能力非常不错。
长辈房的设计效果,落地玻璃窗下摆放了一张沙发和小茶几,温馨舒适的睡眠环境。
儿童房的装修效果,红色和蓝色乳胶漆墙面,看起来特别醒目。儿童床被架在半空,下方则被设计成娱乐区,这样的儿童房设计还真是令人耳目一新。落地玻璃窗下放置了一张白色的书桌,满足小朋友的学习要求。
卫生间采用三分离设计,彻底的干湿分离设计特别实用,有家人上厕所或洗澡时,不会影响洗漱区的使用。
本内容为作者独立观点,不代表“未来家”立场。如对本稿件文字及图片有异议,请联系在线客服!
“未来家”让装修更简单





