80㎡居然能做三房,配色特别高级,设计简洁却很有质感!

80平米的小户型居然能做三房,整体采用现代风格来设计,虽然面积不大,却也不会有太过拥挤的感觉,关键是配色设计非常有高级感和质感,营造出的家居环境兼具了轻奢风的优雅格调和现代风格的时尚设计感。下面就和“未来家装网”一起来看看这套配色高级、设计简洁很有质感的80㎡三房装修设计案例!
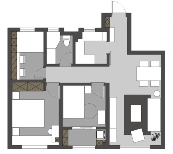
先来看看本案的户型图,虽然面积不大,但户型方正,空间利用率高。两间卧室加一间书房,或许会有些拥挤,却更加实用,独立的书房空间方便偶尔在家工作,还能当临时客房使用。进门就见客厅,客餐厅一体的空间布局,唯一的阳台位于儿童房,小小的空间功能性却非常不错。
客厅外没有阳台,但大大的玻璃窗保证了室内的采光效果。整体的硬装部分十分简洁,乳胶漆墙面,地面铺上木地板,顶部四周安装了造型简洁的吊顶,简约清爽又不乏设计感。客厅的面积虽然不大,却也没有拥挤的感觉。
绿色乳胶漆装饰的电视背景墙,配上黑色的电视柜,瞬间提升了客厅的装修档次的设计感,看起来甚至有点轻奢风的优雅格调。
棕色的皮艺沙发,造型奇特的白色茶几,轻松营造出格调优雅又舒适的家居环境,小巧的体积不会太占地方,让小小的客厅没有丝毫拥挤的感觉。沙发后的墙面没有过多装饰,漂亮的挂钟,再装上一个简易置物架,原本单调的墙面立即变得极具设计感。
餐厅位于客厅的一侧,面积十分紧凑,黑色桌面的餐桌,搭配几把棕色的皮艺餐椅,墙面再刷上和电视背景墙相同的绿色乳胶漆,看起来是不是感觉特别高级。
主卧室床头背景墙乳胶漆的颜色既温暖又特别醒目,配上黑色的床架后,营造出的睡眠环境特别温馨。长长的飘窗,再配上浅灰色的布艺窗帘,墙面的角落再装上挂墙式梳妆台,宁静而唯美的空间看起来特别幸福。
儿童房的面积十分狭小,单人床只能靠墙摆放。
书房采用定制的榻榻米来设计,墙面上方安装了白色吊柜来提升收纳能力,再配上一张造型简洁的白色书桌,甚至能够满足学习和工作的使用要求。
本内容为作者独立观点,不代表“未来家”立场。如对本稿件文字及图片有异议,请联系在线客服!
“未来家”让装修更简单





