浴室柜外移,卡座式餐厅,清新浪漫的简约美式风格三房装修!

100多平米的三房户型,采用十分简洁的美式风格设计,虽然少了一些传统美式风格的大气,却多了一些温馨的家居氛围,将浴室柜外移,餐厅采用卡座式设计,全屋设计简约却有着清新浪漫的视觉效果以及舒适的家居体验。下面就和“未来家装网”一起来看看这套清新浪漫的简约美式风格三房装修设计案例!
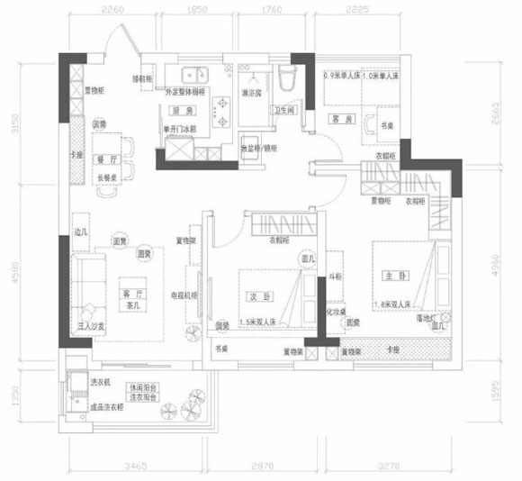
先来看看本案的户型图,标准的三居室,唯一的缺点就是只有一个卫生间。进门就见餐厅,然后是客厅,左手边是厨房,或许面积不是很大,但空间利用率高,卧室宽敞,居住的舒适性还是非常不错的。
客厅的地面采用仿古砖来装饰,墙面刷上乳胶漆,没有去定制满墙的储物柜,所以看起来十分宽敞。
阳台和客厅之间打通,并且安装了储物柜,放置了洗衣机,拓展了阳台的功能性和实用。
电视背景墙采用蓝灰色乳胶漆来装饰,再配上一组美式风格电视柜,简约温馨也十分耐看。
绿色布艺沙,棕色实木茶几,造型有点复的矮柜,熟悉而亲切的家居环境虽然不是很大气,却有着特别温馨的家居氛围。
客餐厅一体的布局,让空间利用率更高,看起来更加宽敞明亮。
为了更好的利用空间,餐厅靠墙定制了一组卡座来代替餐椅,卡座的一侧更是设计成储物柜,再配上长方形餐桌和绿色的餐椅,看起来居然有种美式田园风格的感觉。
厨房的面积不大,蓝灰色的定制橱柜,配上白色的台面,墙面贴上带图案的瓷砖,简约清爽又不失传统美式风格的特点。
主卧室的墙面采用淡淡的绿色乳胶漆来装饰,地面铺上木地板,再配上美式风格的床架,设计清新又特别温馨的睡眠环境。
长长的飘窗下方设计成抽屉,提升卧室的收纳能力。
次卧室的装修和主卧室相同,窗台下方更是安装了挂墙式书桌,非常实用的装修方式。
客房的设计,墙面采用带图案的墙纸来装饰,配上造型别致的上下床,轻松营造出活泼可爱的家居环境。
卫生间采用浴室柜外移的方式来设计,更设置了独立的玻璃淋浴间,也是最为合适的卫生间装修方式。
本内容为作者独立观点,不代表“未来家”立场。如对本稿件文字及图片有异议,请联系在线客服!
“未来家”让装修更简单





