97㎡简约现代风格三房设计,阳台地面抬高,开放式厨房,精致!

标准的三居室户型,整体采用现代风格设计,大量融入原木色饰板装饰的空间简约精致又不乏设计感,不仅有着北欧风般的舒适居住体验,家居氛围也特别温馨。下面就和“未来家装网”一起来看看这套简约精致的97㎡现代风格三房设计案例!
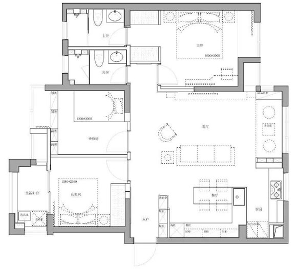
先来看看本案的户型图,户型方正的三房两卫,开放式厨房位于客厅沙发的侧后方,宽敞的大餐厅,三间卧室的面积也都十分不错,有着非常舒服的居住体验。
进门右手边定制了满墙的原木色鞋柜,左手边墙面利用饰板来装饰,再装上几个挂钩,简洁淳朴让人感觉特别舒服的设计方式。视野的尽头是一面墙,挂上一幅装饰画,虽然整体的设计效果不是很高级,但开阔的空间视野,温馨的家居画面,让这套三房成为许多朋友梦想中家的样子。
全屋地面采用原木色的木地板来装饰,墙面刷上乳胶漆,没有高档装修材料的家简洁时尚也更加舒服,让人可以放松身心,享受家居生活所带来的幸福感。
设计简洁的电视背景墙,配上造型简约的挂墙式白色电视柜,底部悬空的设计不仅方便打扫卫生,一排插座也被藏入其中。
深灰色双人位布艺沙发,方形白色小茶几,虽然是现代风格设计,却给人以北欧风的感觉。
客厅外的阳台地面抬高,丰富空间层次感的同时,更提升以整体的设计效果。
沙发的后面就是餐厅,利用墙面定制了满墙的原木色餐边柜,和厨房的橱柜连成一体。
餐厅和厨房的地面采用菱形图案的瓷砖来装饰,清洁卫生时更加方便。
餐厅和厨房之间利用岛台进行隔开,岛台中安装了水槽和水龙头,看起来居然有种豪宅的感觉。
主卧室的床头墙面采用浅灰色乳胶漆来装饰,配上深灰色的布艺软包床架,床尾墙面安装了挂墙式的书桌,同时更兼具了梳妆台的作用。
两间次卧室的面积虽然不大,但空间利用率高,完全没有拥挤的感觉,分别是男孩和女孩的卧室。男孩房以灰色为主来设计,而女孩房采用粉色调来设计。
干湿分离的卫生间,玻璃墙隔出的淋浴区采用灰色瓷砖来装饰,相对而言更加耐脏。马桶和浴室柜区域则以白色来设计,简洁清爽更加实用。
本内容为作者独立观点,不代表“未来家”立场。如对本稿件文字及图片有异议,请联系在线客服!
“未来家”让装修更简单





