她家客厅没有沙发和电视,满墙大书柜,78㎡做出三间卧室,佩服!

现在人对于家里的装修要求真是“千变万化”,比如弱化客厅功能的设计就是其中一种,客厅里不配电视和沙发,墙面装上大书柜,虽然少了传统客厅的感觉,却也让客厅空间变得更加实用。下面就和“未来家装网”一起来看看这套客厅装满书柜的三房装修设计案例!
本案是一套只有80平米左右的小户型空间,由于户型方正,居然被设计出了三间卧室,客餐厅一体加上玻璃隔墙的厨房,让小小的空间能够满足二胎家庭的居住要求。
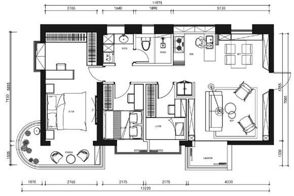
先来看看本案的户型图,户型设计非常方正,进门两侧就是客厅和餐厅。两间儿童房的面积虽然都非常小,但独立的空间对于两胎家庭来说会更加实用。三分离卫生间设计,不仅干湿分离效果好,互不影响的设计能够满足两个人同时使用。
客厅里不仅没有摆放电视和电视柜,就连传统客厅三件套的沙发都没有,而是摆放了一张舒服的单人沙发,再配上日式风格的小圆凳,这样的客厅设计还真是十分少见。
客厅两侧的墙面定制了两张满墙的大书柜,没有柜门的设计虽然容易积灰,但收纳能力却非常强大,摆满了主人喜好的书籍和装饰品。
客厅也没有阳台,只有一扇不错的玻璃窗,玻璃窗的下方设计成地台,从而营造出惬意的家居环境。
虽然没有配电视,却安装了可以伸缩的投影幕布,闲暇时在家就能体验大屏幕带来的视觉冲击。
进门右手边的餐厅和玻璃墙隔出的厨房,餐厅两侧的墙面定制了满墙的储物柜,并且兼具了鞋柜的功能。
厨房的玻璃墙采用可滑动式设计,平时没有做饭的时候将玻璃收起来,让空间显得更加宽敞。
棕色的实木餐桌餐椅,再配上一张长板凳,完全可以满足一家四口的用餐要求。
厨房的面积十分紧凑,白色加原木色的设计看起来却也十分干净。
主卧室的面积非常大,整体的硬装设计非常简洁,白色乳胶漆墙面,地面铺上原木色木地板,再摆上皮艺软包床架,简洁却也特别温馨。
最让人羡慕的就是主卧室里的这个大阳台,利用玻璃窗封起来之后,不仅可以晾晒衣服,也是闲暇时放松的好地方。
主卧室里除了有阳台,还有一扇玻璃窗,让卧室的采光更加充足。窗户的下方设计成带抽屉的飘窗,增加卧室的收纳能力。
两间儿童房的面积都很小,采用定制的榻榻米来设计,从而满足小朋友学习、居住和玩耍的要求。
三分离的卫生间,浴室柜一侧的墙面定制了满墙的储物柜,并且将洗衣机和烘干机嵌入其中,这样的设计方式虽然有些拥挤,却也特别实用。
本内容为作者独立观点,不代表“未来家”立场。如对本稿件文字及图片有异议,请联系在线客服!
“未来家”让装修更简单





